ALTAVILLA MILICIA - AM187 - Panoramica e Rifinita Villa

Codice annuncio: AM187
EURO 300.000,00
Vendita
Residenziale
4
Letti
2
Bagni
Garage: No
150
Superficie

Descrizione

ALTAVILLA MILICIA - AM187 - Costruendo Villa Unifamiliare Panoramica e Rifinita. 
Pregasi contattare l'Agenzia: ALTA Villa Immobiliare - Cell. 334.9085945 (Rosario). 

Altavilla Milicia nella provincia di Palermo, in contrada Chiesazza, contesto residenziale, disponiamo in vendita una costruendo Villa Singola di 150 mq. su due livelli oltre portico coperto, balconi, terrazzino e circa 500 mq. di spazi esterni di pertinenza.
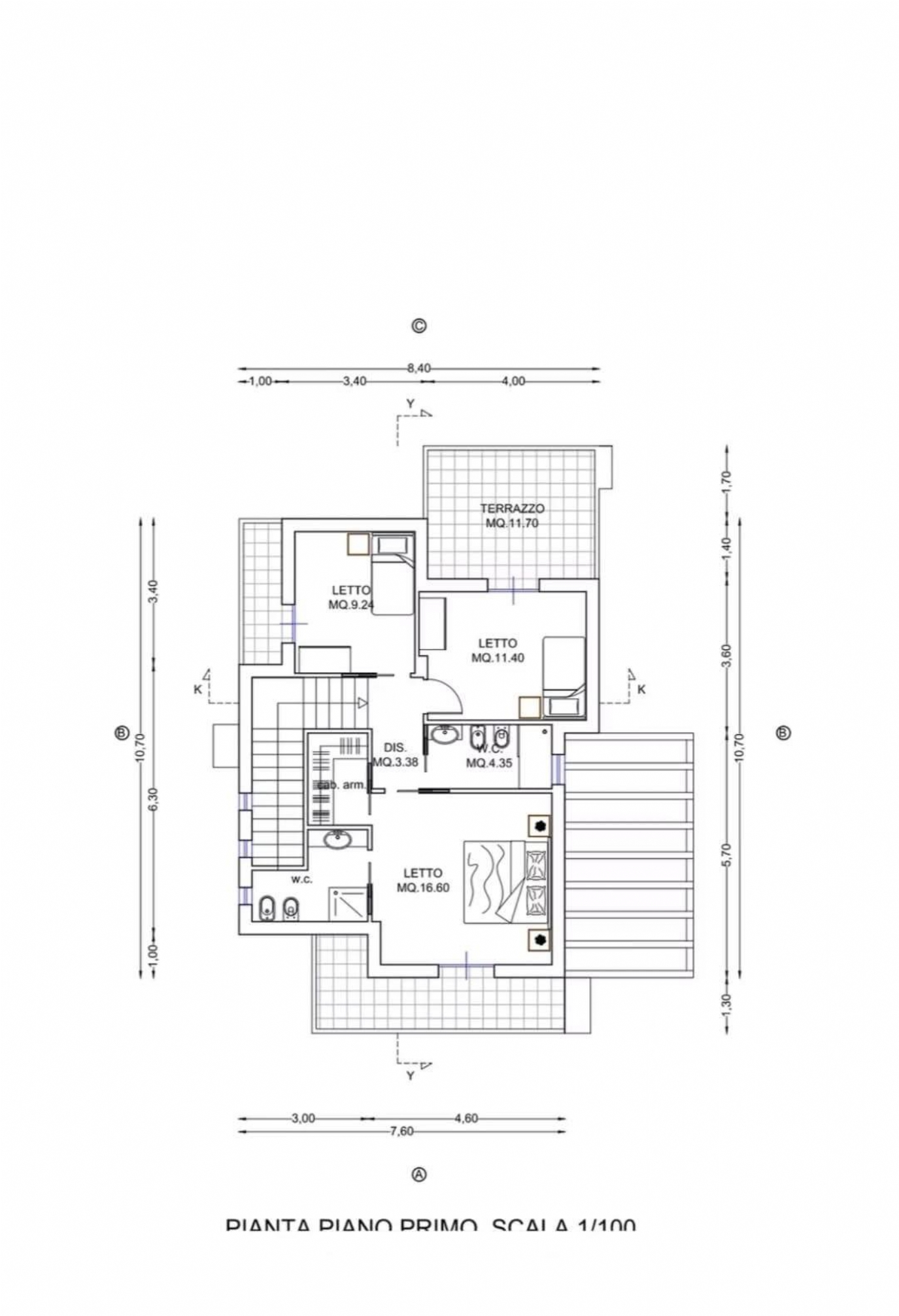
Così composta come da progetto: 
Piano Terra: Ingrresso su ampia cucina-soggiorno-pranzo con scala a vista, disimpegno, ripostiglio, bagno, studio, pergolato in legno, portico coperto e terreno di pertinenza; Piano Primo: vano scala, disimpegno, camera da letto matrimoniale, camera da letto, cameretta, bagno, balconi e terrazzino. Possibilità di personalizzazione. 
Rif. Annuncio = AM187
Richiesta di Vendita: Euro 300.000, 00
Classe Energetica = B.


Posizione
C.da Chiesazza

Caratteristiche
Tipo costruzione
Ville unifamiliari
Stato costruzione
Ottime condizioni
Riscaldamento
Termoautonomo
Condizionatore
Climatizzato
Classe energetica
B
Piscina
Possibilità di realizzazione
Vista
Mare
Giardino
Si
Infissi esterne
Alluminio Taglio termico